Dam Construction Completed!
In September 2020, construction of the Marston-Finn Conservation Dam was completed. See the announcement here!

Dam Construction Updates on Facebook
Please see the Friends of Moeckel Pond Facebook page for day-to-day updates on construction accompanied with many photos and videos.
Dam Reconstruction Permit
In May, 2017, we received our Dam Reconstruction Permit and final approval from the NH Dam Bureau for reconstruction:

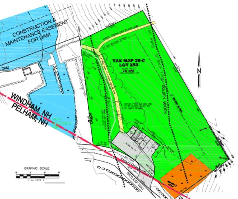
Access and Parking Site Plan
The Windham Planning Board voted 7-0 to approve the site plan for Moeckel Pond access and parking adjacent to the proposed reconstruction of the Marston-Finn Conservation Dam. The picture below is taken from the drawing submitted by Joseph Maynard of Benchmark Engineering with the application. Complete details including a full size drawing are available through the Windham Planning Department.

NH Department of Environmental Wetlands Impact Approval

Engineering and Hydrogeology Report
Engineering Drawings


Conceptual Drawing of Spillway
